Architectural Facade, Specialty Glazing Engineering & Design Services
Facade All Engineering offers a wide range of services related to the facade / specialty glazing industry.
From design concept to evaluation reports, we tailor our services to suit your requirements.
full
1. Engineering Services
- Complete Structural Design and Analysis Calculation Packages
- Stamping of shop drawing and related documents
- Automated computation and report generation for common calculations
- Field Reviews
- Letters of assurance and compliance of design
- Letters of assurance and compliance of design
● P.Eng license in major Canadian Provinces
-
- British Columbia
- Alberta
- Ontario & Manitoba (can be acquired via intermobility)
● P.E licenses in US States
Boston, Ma, Washington Maryland, Virginia, Ohio & Minnesota, California, Florida, Pennsylvania & New York, New Jersey, Alabama, Oregon & Seattle WA


assistance
2. Design Assist Services
- Interpretation and creation of functional Systems design
- Concept and Proposal Drawings
- Verification and Compliance with project
- Performance Specification
custom
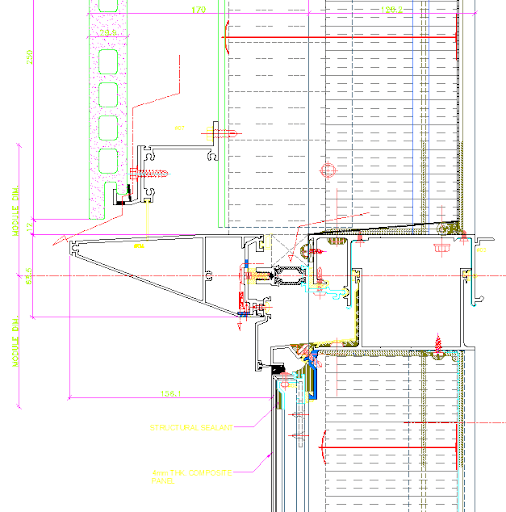
3. Custom "System" Design Services
- Main Template
- Fully Unitized and Stick Curtain Wall
- Ribbon Windows
- Punched Windows
- Panelized Skylight Systems
- Sloped Glazing
- Operable Windows


others
4. Related Services
- Proposal and Profile Drawings
- Extrusions Die Drawings
- Extrusions Confirmation
- Coordination with Extrusion Suppliers

what we do
5. Thermal Modelling Services
● Computer Simulation (Using the latest LBNL Programs)
Thermal modelling is to be performed using THERM and WINDOW version 7.8. Both tools are two-dimensional finite element thermal analysis software tool produced by the Lawrence Berkley National Laboratory (LBNL). THERM and WINDOW are tools extensively used by the fenestration industry to analyze North American fenestration products
● Simulation Report
- Dew Point Analysis
- I-Index Calculation
- Overall “U” Value